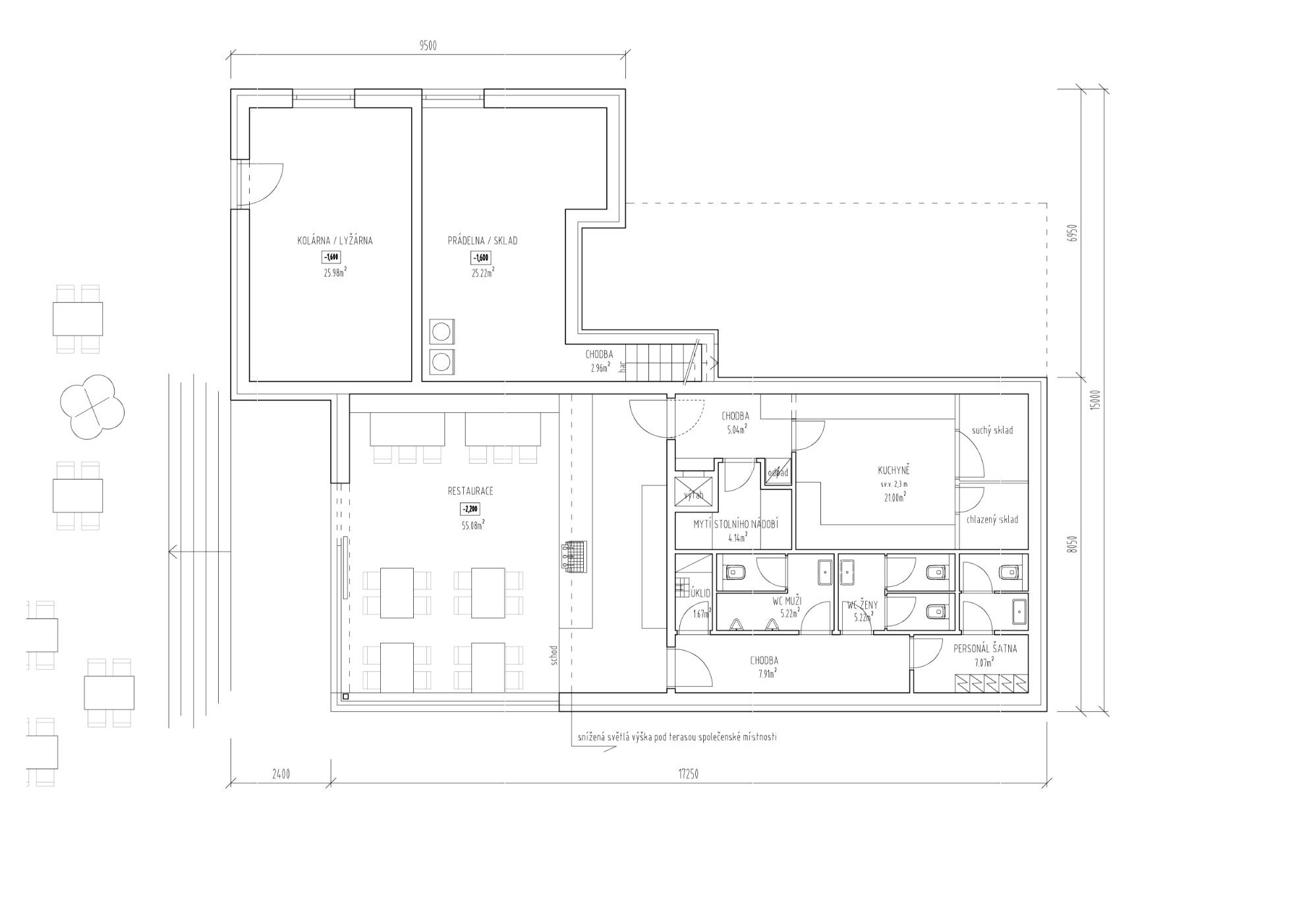
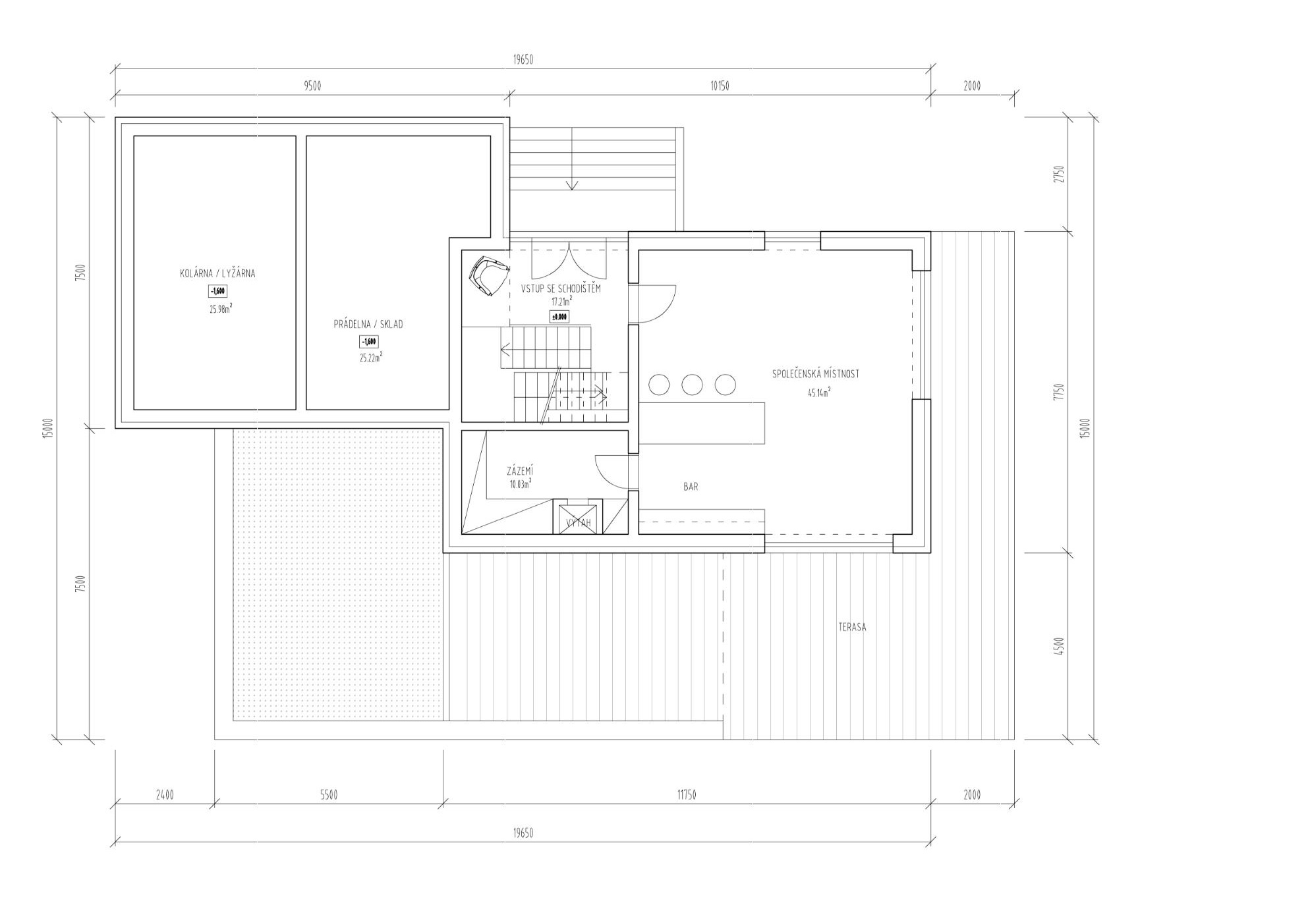
Bistro, clubhouse and guesthouse
Year
2024
Scope of Services
Study
Project Description
We prepared an architectural study for the transformation of an old rural house into a guesthouse with a club room and a cycling bistro. The goal was to create a modern building sensitively integrated into its surroundings, with large glazed surfaces opening up views of the surrounding nature. The project was completed at the study phase, providing the client with a clear vision of the building's future form.










